Learning Outcomes
1. Identify and collect relevant research data.
2. Explain a set of architectural and structural documentation.
3. Relate basic structural elements and structural principles in construction.
4. Analyse and document construction methods and materials
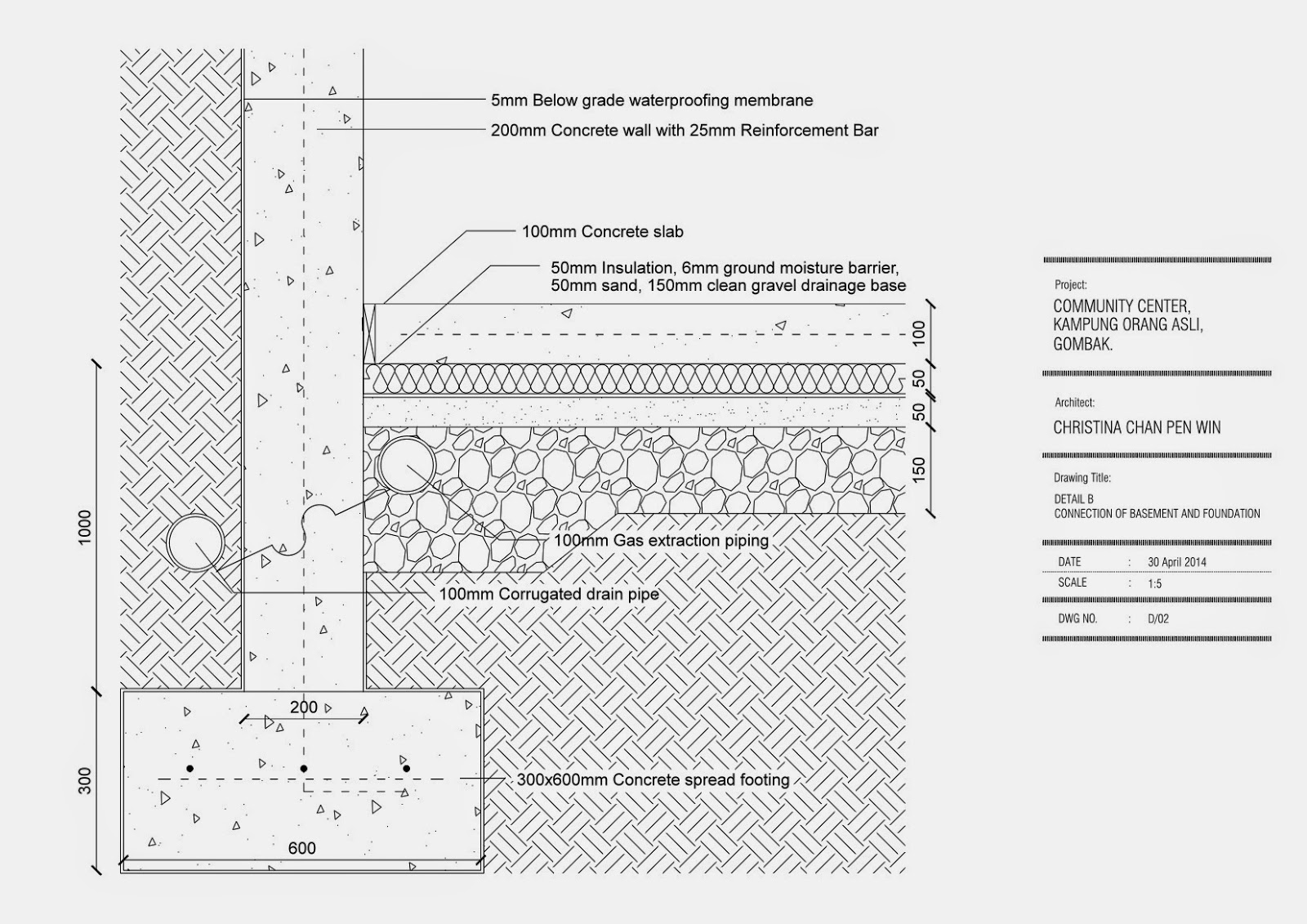
This project modified the design of my Design Studio 4's building (community centre). Working drawings are required with the right scale and specifications. Detail drawings are important to show the study of building construction of floor, wall and roof system. The connection methods are the main thing to learn to connect the structures of the building together.









No comments:
Post a Comment